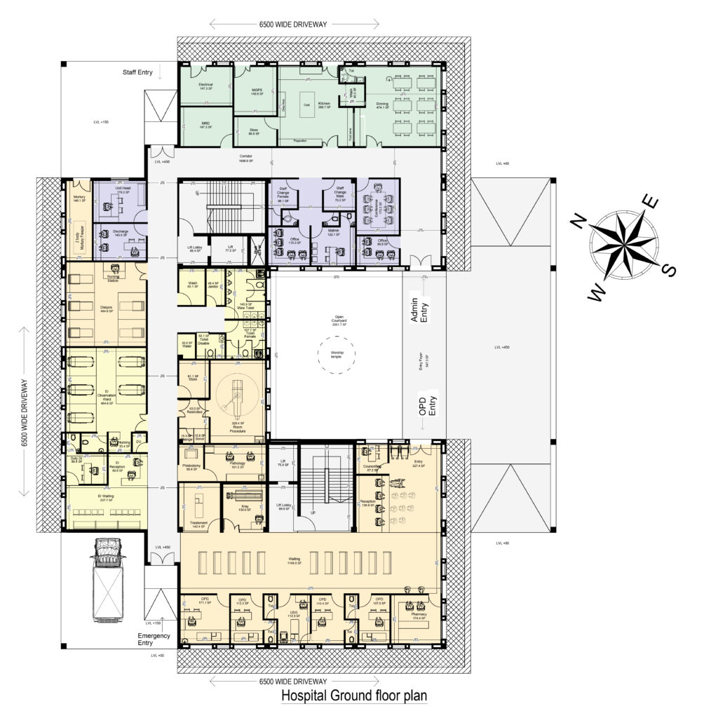
JSW Hospital

These two-storied hospital buildings by JSW Foundation in Koida, Odisha, showcase a harmonious blend of modern design and traditional aesthetics. The structures feature earthy tones, shaded verandas, large windows with wooden louver panels for ventilation, and ample greenery around. The central courtyard includes a serene temple-like structure, fostering a peaceful atmosphere. Practicality meets simplicity with ample parking for autos and two-wheelers. The buildings are designed to be functional, climate-responsive, and culturally rooted, creating a comforting and community-friendly healthcare environment.